
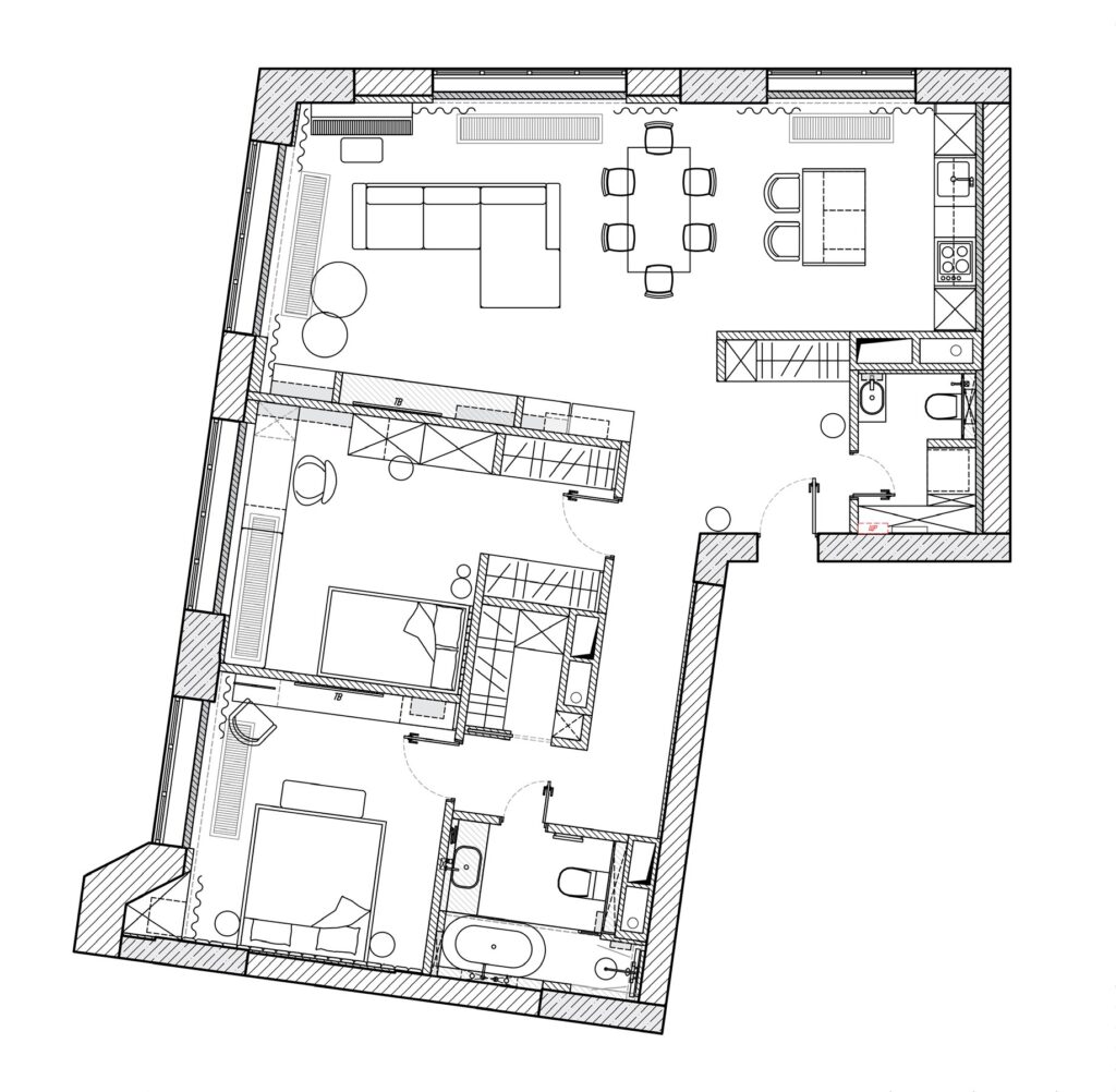
Спроектировать пространство для двух девушек: мамы и дочки-подростка, в котором будут как просторная общая зона (кухни-гостиной), так и уединенные зоны для каждой.
Большую кухню-гостиную мы решили разделить с помощью обеденной зоны, которая так же стала цветовым акцентом в интерьере.




Апартаменты выполнены в сдержанной, теплой гамме в сочетании с древесными текстурами, которые были использованы в мебели и инженерной доске в качестве напольного покрытия.


Заполните форму, мы свяжемся для дальнейшего обсуждения дизайн-проекта