
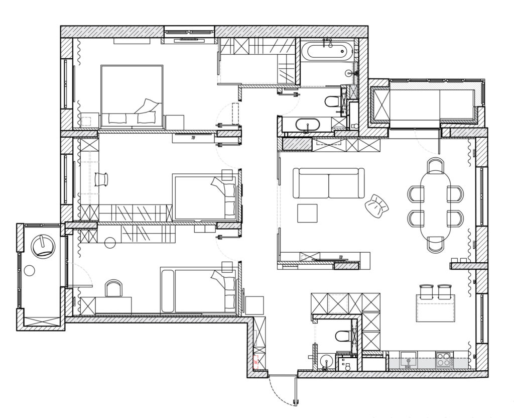
Организовать удобное пространство для семьи из 4х человек так, чтобы была большая общая зона и при этом у каждого члена семьи место, чтобы побыть наедине.
Центром квартиры стала зона тв и не только потому, что на нем расположен телевизор – колонна, на которой он размещен делает планировочное решение кухни-гостиной круговым. Тоесть вы можете обойти вокруг нее и попасть во все ключевые зоны: прихожая, кухня, столовая зона, гостиная или в коридор, ведущий к спальням.




Вся квартира выполнена в сочетании натуральны оттенков и материалов : на стенах светло-серый цвет сочетается с древесной фактурой благородного ореха в мебели и инженерной доске на полу, а так же камня в цвете антрацит в качестве отделки столешниц, фартука и элементов декора стен.


Заполните форму, мы свяжемся для дальнейшего обсуждения дизайн-проекта