
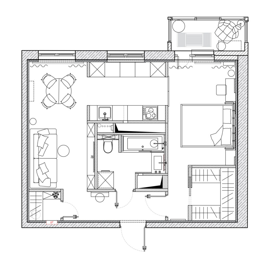
На небольшой площади в 50,8 м2 создать удобное пространство для хозяйки квартиры с отдельной зоной гостиной, кухни и спальни. А так же, обязательно предусмотреть кладовую.
Необычное расположение кухни на две стороны получилось благодаря тому, что ванная комната расположена по центру квартиры от застройщика. В итоге у нас получилась круговая планировка, где из каждой зоны можно попасть в две другие.




Кстати, идея круговой планировки так же нашла свое место и в дизайне, где мы использовали множество элементов округлой формы: светильники, обеденный стол, зеркала, элементы мебели.


Заполните форму, мы свяжемся для дальнейшего обсуждения дизайн-проекта