

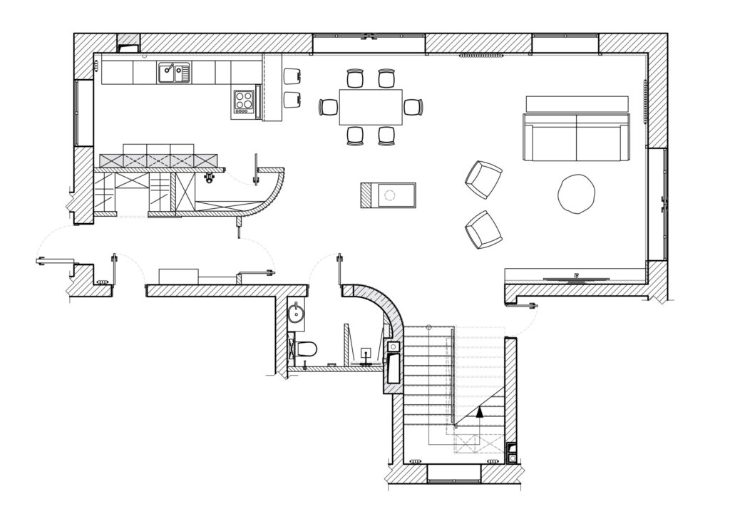
Создать внутреннее пространство дома с элементами стиля Loft, которое не будет спорить с внешней архитектурой дома в духе неоклассики.
Достаточно непростую задачу мы решили неординарно с помощью смешения стилей: нижнюю часть стен мы выложили декоративным кирпичом, а верхнюю и потолок украсили классическими молдингами и ажурной розеткой. Зона кухни-гостиной и столовой занимает практически полностью 1 этаж дома, поэтому мы старались сделать так, чтобы они перетекали одна в другую: кухня выглядит непривычно, потому что мы отказались от верхних шкафов, но при этом в отделке стен предусмотрели подсветку кухонной зоны, которая продолжается и на стенах в столовой и гостиной.




В отделке интерьера вы можете заметить множество древесных текстур, которые выглядят очень натурально, но ни одна из них не является натуральным деревом: на полу у нас керамогранит, а мебель выполнена из влагостойких и практичных панелей TSS Cleaf.


Заполните форму, мы свяжемся для дальнейшего обсуждения дизайн-проекта